Ref : 63_2519_SR
Location Entrepôt
LOCAL D'ACTIVITE A LOUER
Clermont-Ferrand (63000)
Loyer : 33 660 € / an
Surface 440 m²
Description du bien
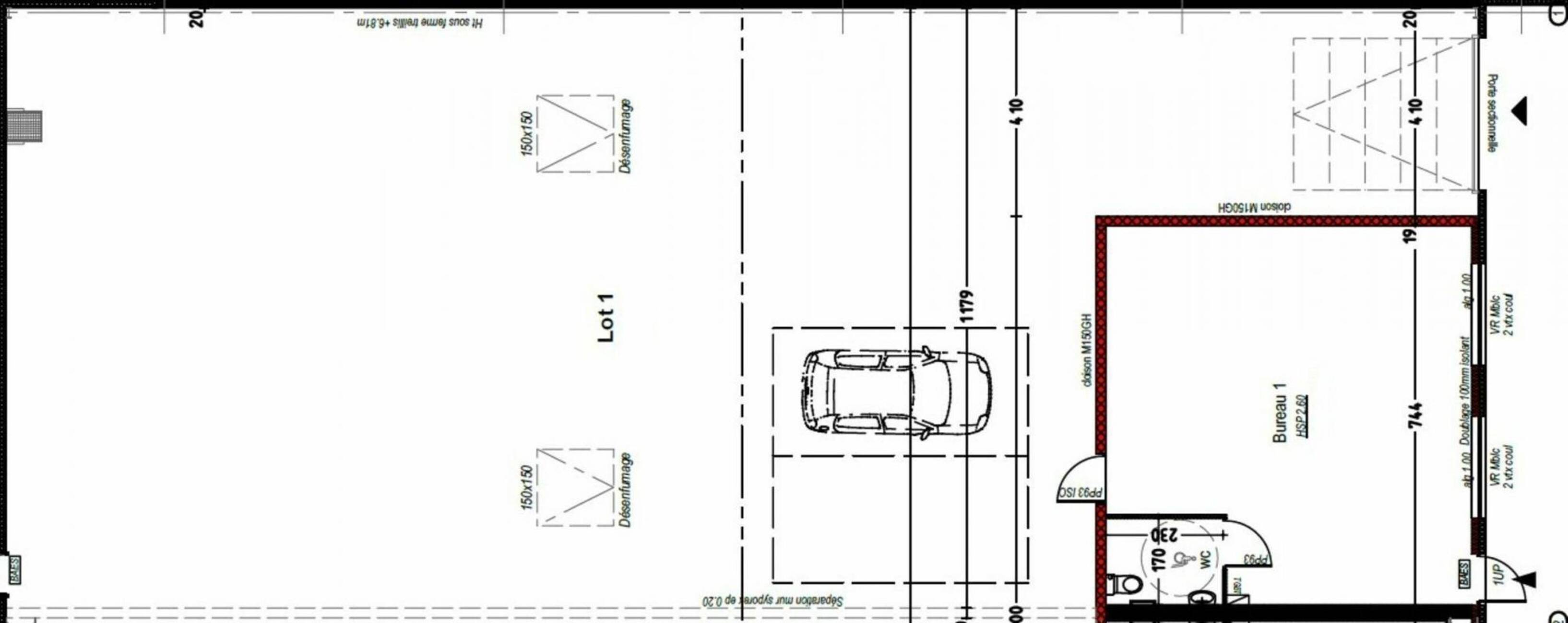
Notre agence Conseil en Immobilier d'Entreprise vous présente à la location une cellule de stockage avec bureaux et mezzanine, de 440 m2, situées dans la ZI importante du Brézet de Clermont-Ferrand.
La cellule neuve comprend une porte sectionnelle motorisée (dimensions 3,5 x 3 m).
CARACTERISTIQUES :
- Façade en bardage double peau.
- Hauteur libre sous toiture de 8 m.
- Locaux d'activités non chauffés.
- Climatisation réversible dans les bureaux.
- Bureaux conformes à la réglementation RE 2020, double vitrage.
- Centrale photovoltaïque en toiture.
- Bornes de recharge électrique.EMPLACEMENT STRATEGIQUE :
- Proximité immédiate de l'A75, l'A89 et l'A71.
- Accessibilité optimale.
- Proximité des zones économiques.
- Infrastructures modernes et adaptées aux besoins des entreprises.Retrouvez cette offre sur notre site web SRI et créez vos alertes de recherches !
Contactez nous dès maintenant pour découvrir également nos offres non diffusées. Nous sommes à votre écoute.
Prestations du bien
- Climatisation réversible
- Double vitrage
- Façade bardage double peau
- Hauteur sous plafond :
- Nbre Parkings extérieurs : 30
- Place(s) véhicule(s) électrique(s) + borne(s)
- Porte Sectionelle : 3,5x3
- Porte sectionnelle motorisée
- o Hauteur libre sous toiture de 8 m.
- o Climatisation réversible dans les bureaux.
- o Locaux d'activités non chauffés ;
- o Bureaux conforme à la règlementation RE 2020, double vitrage.
- o Centrale photovoltaïque en toiture.
- Possibilité de faire un quai poids lourd : aire de stationnement PL prévue.
Informations financières
- Charges minimales : 1 760 €
- Bail : Commercial 9 ans
- Taxe foncière : 3 740 €
- Dépôt de garantie : 3 mois de loyer HT/HC
Ce local professionnel vous est présenté par
Vous souhaitez nous joindre ?
Localisation et accessibilité
- Bus: Lignes de bus à proximité.
Gare SNCF de Clermont-Ferrand. - Autoroute: Proximité de l'A75, l'A89 et l'A71.
Ces biens pourraient vous intéresser
| Batiment - Lot | Numéro des Lots | Surface Entrepôts RDC | Surface Bureaux RDC | Surfaces Mezzanines | Surface Totale | Total Loyer | Charges + TF |
| Bâtiment n°1 | 1 | 280.59 | 57.19 | 101.32 | 439.10 | 33 649 € | Charges loc 4 € HT/m²/an et TF 8.50 € HT/m²/ |


















































