Ref : 95_0551_IN
Location Local d'activités
LOCAL D'ACTIVITE A LOUER
Ennery (95300)
Loyer : 32 832 € / an
Surface 273 m²
Description du bien
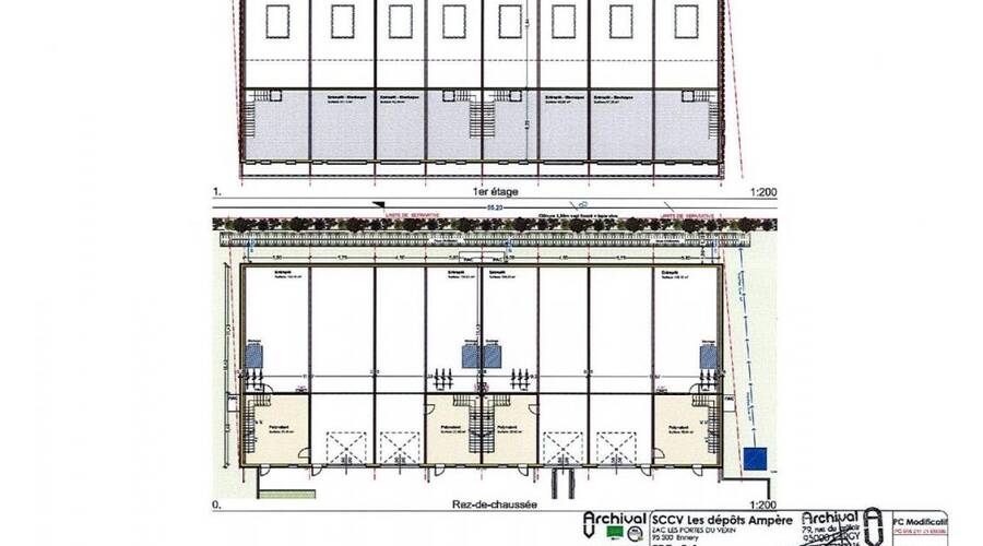
INVEST CONSEIL vous propose à la location un local d'activités d'environ 274 m² situé dans la zone d'activités d'ENNERY.
Les + :
- Local neuf et polyvalent
- Bureau aménagé
- Climatisation réversible
Prestations du bien
- Accès de plain pied
- Accès PMR
- Accès poids lourds
- Bardage double peau
- Câblage RJ45
- Charge au sol : 2T/m²
- Climatisation réversible
- Espaces verts
- Faux plafond
- Fibre optique
- Goulotte technique
- Hauteur sous plafond : 3,40 m à 6,63 m
- Parkings 4/lot
- Porte sectionnelle motorisée : 3 m (h) x 3,5 m (l)
- Puissance électrique : 380V
- Revêtement sol dalle béton
- Revêtement sol en linoléum
- Sanitaires privés
- Système de désenfumage
- Terrain clos
- Toiture bac acier
- Mezzanine
Informations financières
- Charges minimales : 1 800 €
- Bail : Commercial 3-6-9 ans
- Dépôt de garantie : 3 mois de loyer HT/HC
Ce local professionnel vous est présenté par
Vous souhaitez nous joindre ?
Localisation et accessibilité
- Bus: SNCF : Gare de Pontoise SNCF Paris Saint Lazare
BUS : 95-05 vers Cergy préfecture et Pontoise - Autoroute: A15 / D915
Ces biens pourraient vous intéresser
| Batiment - Lot | Etage | Type | Surface totale (en m2) | Emplacement(s) de parking | Loyer annuel HT/HC | Provision annuelle pour charges HT | Disponibilité |
| Lot 1 | Local d'activités / Bureaux | 273,60 | 4 | 32 832,00 € | 1800,00 € | immédiate | |
| RDC | Activités | 203,51 | |||||
| R+1 | Bureaux | 70,09 | |||||
| RDC | Activités | 203,56 | |||||
| R+1 | Bureaux | 69,14 |
































