Ref : 1332843-0L_MA
Location Local d'activités
Location Locaux d'Activités - Lyon 7 (69007) - 362 m² divisibles à partir de 144 m²
Lyon (69007)
Loyer : 56 352 € / an
Surface 362 m²
Divisible dès 144 m²
Description du bien
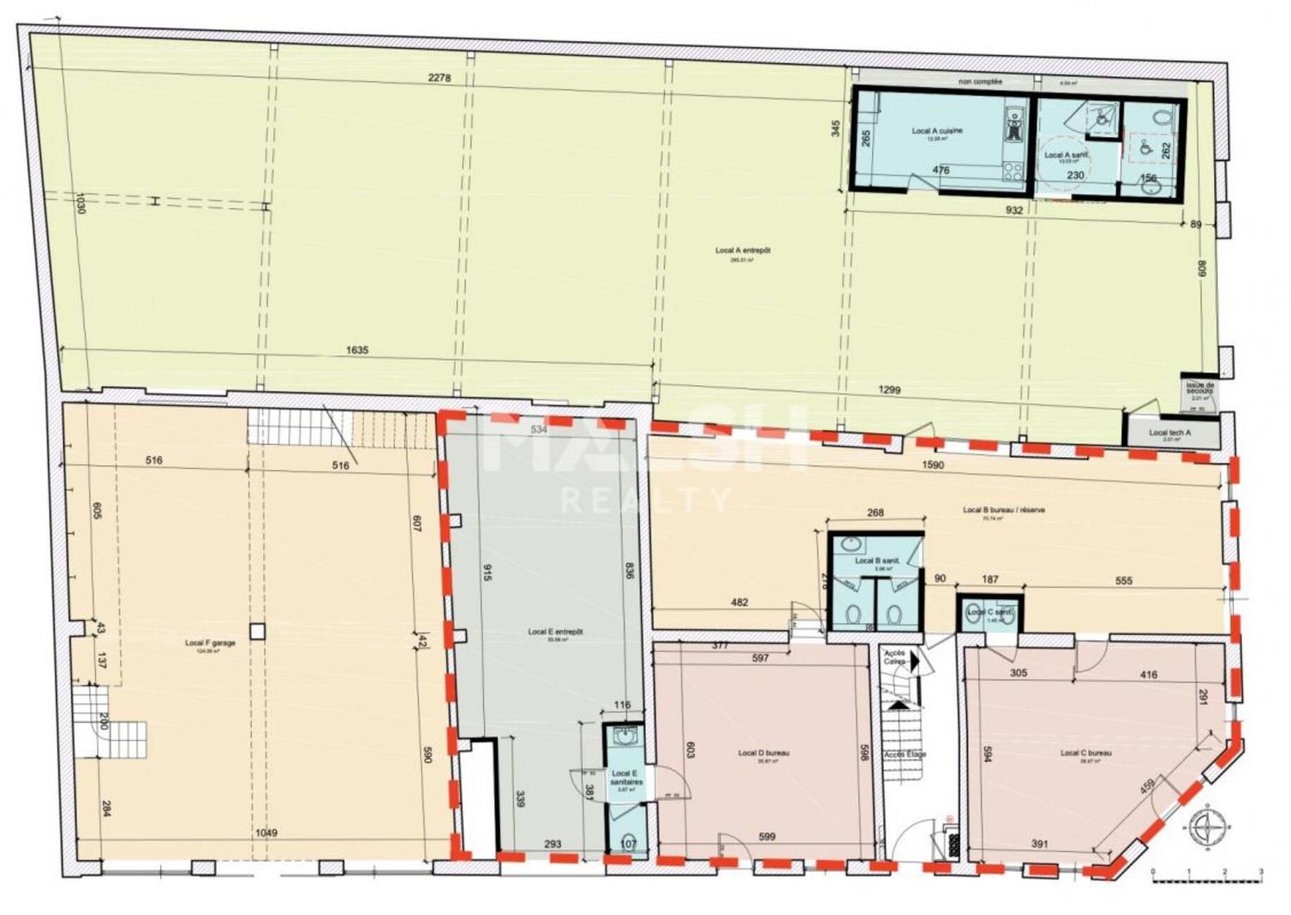
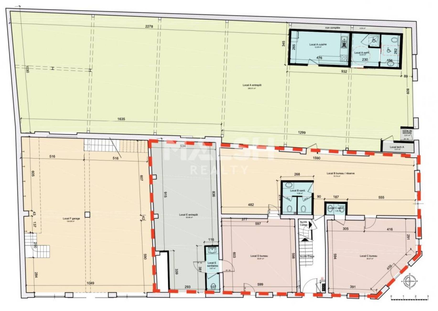
MALSH Realty vous propose à la location dans le quartier de Jean-Jaurès à Lyon 7ème, des locaux d'une surface totale d'environ 362 m² divisibles en 2 lots :
- Lot G : Un local d'activités d'une surface totale d'environ 144 m² dont 22 m² de mezzanine
- Lot B/C/D/E : Un local mixte d'une surface totale d'environ 218 m² comprenant 58 m² d'activités et 160 m² de bureaux
Disponible immédiatement !
Prestations du bien
- Stationnements
- Lot B/C/D/E :
- Double portail métallique coulissant avec rampe PMR
- Bureaux
- Sanitaires
- Sol carrelage
- Climatisation/chauffage par ventilation air froid/air chaud
- Cave de 3,68 m²
- Lot G :
- Accès poids lourd possible
- Accès par portail métallique motorisé et porte sectionnelle vitrée laissant passer la lumière naturelle
- ERP possible via accès secondaire sécurisé
- Sol en dalle béton lissé gris, murs clairs, faux-plafond avec pavés lumineux LED.
- Hauteur utile : environ 4,5 m sous poutre
- Eclairage LED généralisé
- Cimaises murales pour affichage sans perforation
- Isolation performante
- Mezzanine aménagée : garde-corps, sol parquet, éclairage par spots, câblage RJ45
- Bloc sanitaire complet comprenant :
- - WC suspendu et WC PMR indépendants, lave-mains et barres d'appui inox
- - Douche à l'italienne avec colonne hydromassante
- - Mobilier vasque et rangements.
- - Éclairage à détection de mouvement
- Cuisine équipée : plan de travail blanc, évier inox, four, micro-ondes, réfrigérateur, rangements hauts et bas
- Climatisation réversible (air chaud / froid - 4 cassettes)
- Prises électriques et RJ45, local gainé pour la fibre
- 2 extincteurs (eau + poudre)
- 3 points d'eau et 3 regards EU
Informations financières
- Charges minimales : 303 €
- Bail : commercial 3-6-9 ans
- Informations location :
Conditions particulières à la location : Frais d'état des lieux par huissier à prévoir
Frais de rédaction de bail à la charge du Preneur - Dépôt de garantie : 3 mois de loyer HT/HC
Ce local professionnel vous est présenté par
Vous souhaitez nous joindre ?
Surfaces des locaux
| Étage | Bâtiment | Type | Surfaces | Disponibilité | Loyer | Charges | Honoraires | Fiscal | Bail | Révision annuelle | Prix | Charges | Honoraires | Fiscal | Paiement Loyer | lot | Coworking | |
|---|---|---|---|---|---|---|---|---|---|---|---|---|---|---|---|---|---|---|
| Bureaux | 160 | 15 % HT du loyer annuel HT/HC, à la charge du Preneur, payables à la signature du bail | T.V.A. (20%) | ILC Indice des Loyers Commerciaux | Trimestriel d'avance | |||||||||||||
| Activités | 58 | 15 % HT du loyer annuel HT/HC, à la charge du Preneur, payables à la signature du bail | T.V.A. (20%) | ILC Indice des Loyers Commerciaux | Trimestriel d'avance | E | ||||||||||||
| Total Cellule B/C/D/E | Activités | 218 | Immédiate | 159,79 HT/HC/m²/an | 3 640 HT/an | 15 % HT du loyer annuel HT/HC, à la charge du Preneur, payables à la signature du bail | T.V.A. (20%) | commercial 3-6-9 ans | ILC Indice des Loyers Commerciaux | Trimestriel d'avance | B/C/D/E | |||||||
| Mezzanine | 22 | 15 % HT du loyer annuel HT/HC, à la charge du Preneur, payables à la signature du bail | T.V.A. (20%) | ILC Indice des Loyers Commerciaux | Trimestriel d'avance | |||||||||||||
| RDC | Activités | 122 | 15 % HT du loyer annuel HT/HC, à la charge du Preneur, payables à la signature du bail | T.V.A. (20%) | ILC Indice des Loyers Commerciaux | Trimestriel d'avance | ||||||||||||
| Total Cellule G | Activités | 144 | Immédiate | 149,36 HT/HC/m²/an | 1 520 HT/an | 15 % HT du loyer annuel HT/HC, à la charge du Preneur, payables à la signature du bail | T.V.A. (20%) | commercial 3-6-9 ans | ILC Indice des Loyers Commerciaux | Trimestriel d'avance | G | |||||||
| Total | 362 m² |
Localisation et accessibilité
- Bus: Bus TCL lignes C7, C12, 35 et 64
- SCNF: Gare de Jean-Macé à 10 min à pied
- Metro: Métro ligne B station " Place Jean Jaurès"
- Tramway: Tramway T2 arrêt "Jean-Macé"
Ces biens pourraient vous intéresser
| Étage | Bâtiment | Type | Surfaces | Disponibilité | Loyer | Charges | Honoraires | Fiscal | Bail | Révision annuelle | Prix | Charges | Honoraires | Fiscal | Paiement Loyer | lot | Coworking | |
|---|---|---|---|---|---|---|---|---|---|---|---|---|---|---|---|---|---|---|
| Bureaux | 160 | 15 % HT du loyer annuel HT/HC, à la charge du Preneur, payables à la signature du bail | T.V.A. (20%) | ILC Indice des Loyers Commerciaux | Trimestriel d'avance | |||||||||||||
| Activités | 58 | 15 % HT du loyer annuel HT/HC, à la charge du Preneur, payables à la signature du bail | T.V.A. (20%) | ILC Indice des Loyers Commerciaux | Trimestriel d'avance | E | ||||||||||||
| Total Cellule B/C/D/E | Activités | 218 | Immédiate | 159,79 HT/HC/m²/an | 3 640 HT/an | 15 % HT du loyer annuel HT/HC, à la charge du Preneur, payables à la signature du bail | T.V.A. (20%) | commercial 3-6-9 ans | ILC Indice des Loyers Commerciaux | Trimestriel d'avance | B/C/D/E | |||||||
| Mezzanine | 22 | 15 % HT du loyer annuel HT/HC, à la charge du Preneur, payables à la signature du bail | T.V.A. (20%) | ILC Indice des Loyers Commerciaux | Trimestriel d'avance | |||||||||||||
| RDC | Activités | 122 | 15 % HT du loyer annuel HT/HC, à la charge du Preneur, payables à la signature du bail | T.V.A. (20%) | ILC Indice des Loyers Commerciaux | Trimestriel d'avance | ||||||||||||
| Total Cellule G | Activités | 144 | Immédiate | 149,36 HT/HC/m²/an | 1 520 HT/an | 15 % HT du loyer annuel HT/HC, à la charge du Preneur, payables à la signature du bail | T.V.A. (20%) | commercial 3-6-9 ans | ILC Indice des Loyers Commerciaux | Trimestriel d'avance | G | |||||||
| Total | 362 m² |































































