Ref : 1598774-0L_MA
Location Local d'activités
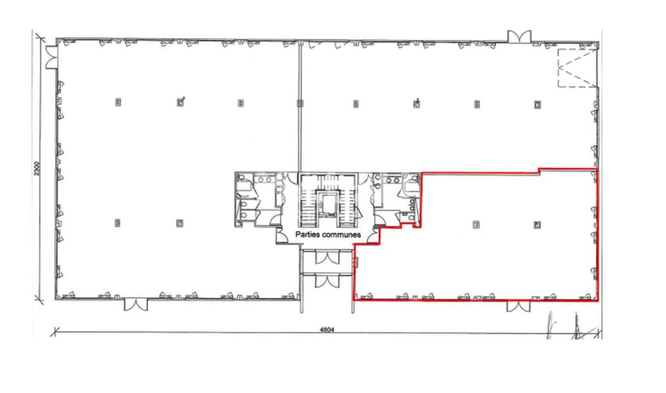
Location Local 207 m² - Bureaux et Activités (Petit stockage) - Lyon 7ème (69007) - Gerland
Lyon (69007)
Loyer : 36 324 € / an
Surface 206 m²
Description du bien
MALSH Realty vous propose à la location au coeur de Gerland dans le 7ème arrondissement de Lyon au sein d'un parc tertiaire sécurisé, un local d'une surface totale d'environ 206,70 m² à usage de bureaux et de petite d'activité.
Ce lot dispose de 3 places de parking.
Idéal pour du petit stockage.
Disponible immédiatement !
Prestations du bien
- Portail électrique
- Digicode / Interphone
- Accès PMR
- Bureaux + Activités (petit stockage)
- Sanitaires en parties communes
- Climatisation réversible
- Stationnements : 3 places de parking privatives
Informations financières
- Charges minimales : 1 046 €
- Bail : commercial 3-6-9 ans
- Dépôt de garantie : 3 mois de loyer HT/HC
Ce local professionnel vous est présenté par
Vous souhaitez nous joindre ?
Surfaces des locaux
| Étage | Bâtiment | Type | Surfaces | Disponibilité | Loyer | Charges | Honoraires | Fiscal | Bail | Révision annuelle | Prix | Charges | Honoraires | Fiscal | Paiement Loyer | lot | Coworking | |
|---|---|---|---|---|---|---|---|---|---|---|---|---|---|---|---|---|---|---|
| Activités | 206,7 | Immédiate | 167 HT/HC/m²/an | 12 557 HT/an | 15 % HT du loyer annuel HT/HC à la charge du preneur, payables à la signature du bail | T.V.A. (20%) | commercial 3-6-9 ans | ILAT Indice des Loyers des Activités Tertiaires | Trimestriel d'avance | 3 | ||||||||
| Parkings | - | Immédiate | 600 HT/HC/place/an | 220 HT/Unité/an | 15 % HT du loyer annuel HT/HC à la charge du preneur, payables à la signature du bail | T.V.A. (20%) | commercial 3-6-9 ans | ILAT Indice des Loyers des Activités Tertiaires | Trimestriel d'avance | 11, 12 et 13 | ||||||||
| Total | 206,7 m² | |||||||||||||||||
| 3 extérieurs | ||||||||||||||||||
Localisation et accessibilité
- Bus: Bus TCL lignes 34, 60 et 64
- Metro: Métro ligne B station "Stade de Gerland"
- Tramway: Tramway ligne T6 arrêt "Challemel Lacour"
Ces biens pourraient vous intéresser
| Étage | Bâtiment | Type | Surfaces | Disponibilité | Loyer | Charges | Honoraires | Fiscal | Bail | Révision annuelle | Prix | Charges | Honoraires | Fiscal | Paiement Loyer | lot | Coworking | |
|---|---|---|---|---|---|---|---|---|---|---|---|---|---|---|---|---|---|---|
| Activités | 206,7 | Immédiate | 167 HT/HC/m²/an | 12 557 HT/an | 15 % HT du loyer annuel HT/HC à la charge du preneur, payables à la signature du bail | T.V.A. (20%) | commercial 3-6-9 ans | ILAT Indice des Loyers des Activités Tertiaires | Trimestriel d'avance | 3 | ||||||||
| Parkings | - | Immédiate | 600 HT/HC/place/an | 220 HT/Unité/an | 15 % HT du loyer annuel HT/HC à la charge du preneur, payables à la signature du bail | T.V.A. (20%) | commercial 3-6-9 ans | ILAT Indice des Loyers des Activités Tertiaires | Trimestriel d'avance | 11, 12 et 13 | ||||||||
| Total | 206,7 m² | |||||||||||||||||
| 3 extérieurs | ||||||||||||||||||



























































