Ref : 1382873-0L_MA
Location Local d'activités
Location Local d'Activités indépendant - Lyon 7 (69007) - 884 m²
Lyon (69007)
Loyer : 94 008 € / an
Surface 884 m²
Description du bien
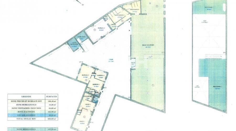
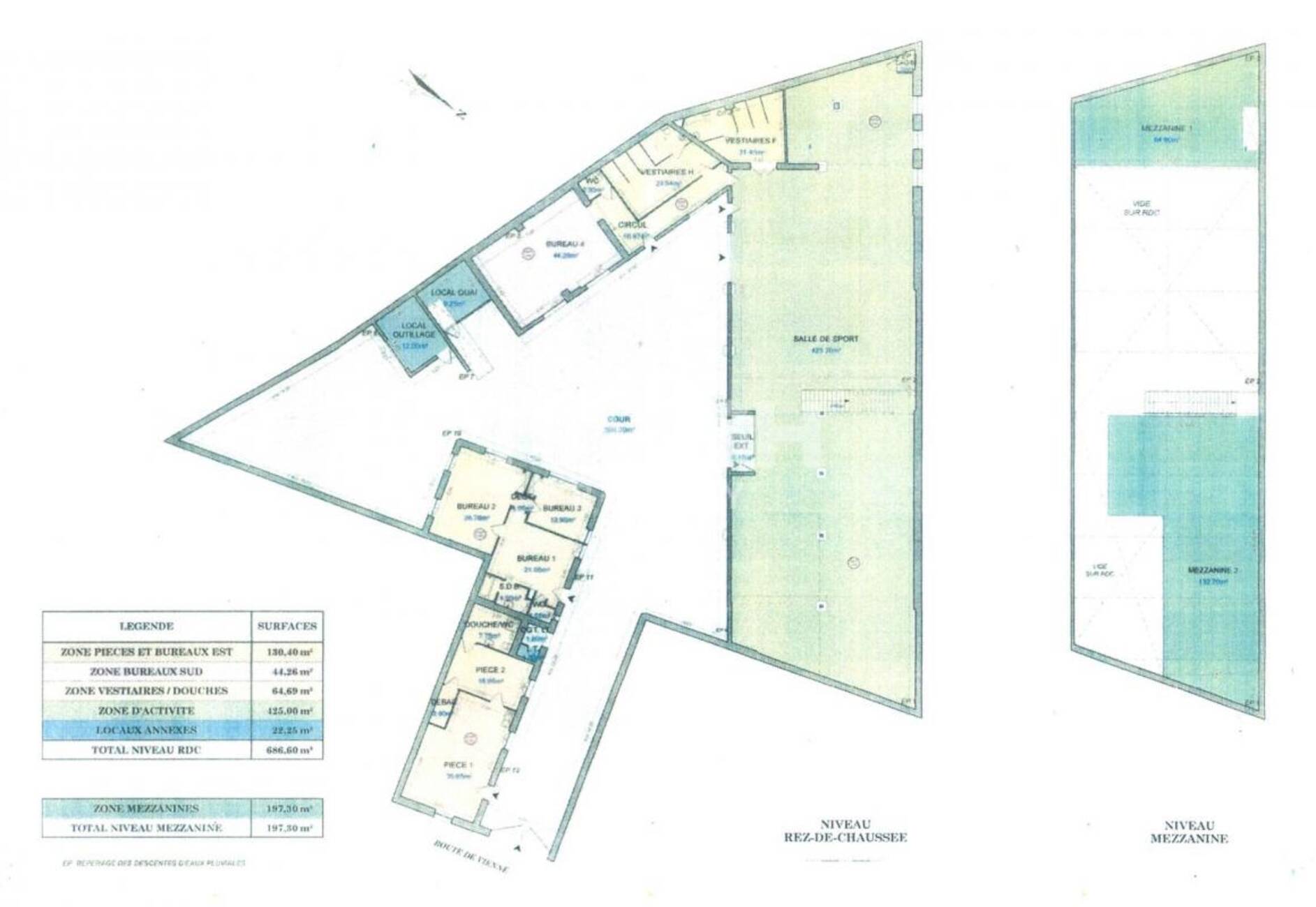
MALSH Realty vous propose à la location au coeur du 7ème arrondissement de Lyon, sur un terrain indépendant de 1 300 m², un bâtiment d'activités d'une surface totale d'environ 884 m² comprenant 447 m² d'activités, 175 m² de bureaux, 65 m² de locaux sociaux et une mezzanine de 197 m². Bien très rare, pouvant accueillir divers types d'activités. Site indépendant avec cour extérieure privative.
Disponible immédiatement !
Prestations du bien
- Accès / Extérieurs :
- Accès de plain-pied
- 2 portes sectionnelles
- Quai poids lourd pouvant être remis en service
- Cour extérieure privative
- Parkings extérieurs
- Activité / Entrepôt :
- Grande hauteur sous plafond : 7 m sous fermes
- Possibilité d'exploitation ou de stockage sur mezzanine
- Bureaux / Locaux sociaux :
- Bureaux équipés à rafraîchir
- Faux-plafonds avec dalles
- Différentes pièces modulables pouvant être utilisées en bureaux ou locaux sociaux
- Sanitaires / Vestiaires :
- Vestiaires et douches H/F tout équipés
- Locaux annexes :
- Cagibis, locaux techniques et espaces additionnels fonctionnels
- Immeuble indépendant
- Surface terrain : 1300
Informations financières
- Charges minimales : 805 €
- Bail : commercial 3-6-9 ans
- Informations location :
Conditions particulières à la location : Les charges comprennent les frais d'entretien, la taxe foncière et l'assurance.
- Dépôt de garantie : 3 mois de loyer HT/HC
Ce local professionnel vous est présenté par
Vous souhaitez nous joindre ?
Surfaces des locaux
| Étage | Bâtiment | Type | Surfaces | Disponibilité | Loyer | Charges | Honoraires | Fiscal | Bail | Révision annuelle | Prix | Charges | Honoraires | Fiscal | Paiement Loyer | lot | Coworking | |
|---|---|---|---|---|---|---|---|---|---|---|---|---|---|---|---|---|---|---|
| Mezzanine | 197 | 20 % HT du loyer annuel HT/HC, à la charge du Preneur, payables à la signature du bail | T.V.A. (20%) | ILAT Indice des Loyers des Activités Tertiaires | Mensuel d'avance | |||||||||||||
| RDC | Activités | 447 | 20 % HT du loyer annuel HT/HC, à la charge du Preneur, payables à la signature du bail | T.V.A. (20%) | ILAT Indice des Loyers des Activités Tertiaires | Mensuel d'avance | ||||||||||||
| RDC | Bureaux | 175 | 20 % HT du loyer annuel HT/HC, à la charge du Preneur, payables à la signature du bail | T.V.A. (20%) | ILAT Indice des Loyers des Activités Tertiaires | Mensuel d'avance | ||||||||||||
| RDC | Locaux sociaux | 65 | 20 % HT du loyer annuel HT/HC, à la charge du Preneur, payables à la signature du bail | T.V.A. (20%) | ILAT Indice des Loyers des Activités Tertiaires | Mensuel d'avance | ||||||||||||
| Total Cellule | Activités | 884 | Immédiate | 106,33 HT/HC/m²/an | 9 660 HT/an | 20 % HT du loyer annuel HT/HC, à la charge du Preneur, payables à la signature du bail | T.V.A. (20%) | commercial 3-6-9 ans | ILAT Indice des Loyers des Activités Tertiaires | Mensuel d'avance | ||||||||
| Total | 884 m² |
Localisation et accessibilité
- Bus: Bus TCL lignes C7, C12 et 35
- SCNF: Gare de Jean Macé à 10 min à pied
- Metro: Métro ligne B station "Jean Macé" à 10 min à pied
- Tramway: Tramway ligne T2 arrêt "Route de Vienne"
Ces biens pourraient vous intéresser
| Étage | Bâtiment | Type | Surfaces | Disponibilité | Loyer | Charges | Honoraires | Fiscal | Bail | Révision annuelle | Prix | Charges | Honoraires | Fiscal | Paiement Loyer | lot | Coworking | |
|---|---|---|---|---|---|---|---|---|---|---|---|---|---|---|---|---|---|---|
| Mezzanine | 197 | 20 % HT du loyer annuel HT/HC, à la charge du Preneur, payables à la signature du bail | T.V.A. (20%) | ILAT Indice des Loyers des Activités Tertiaires | Mensuel d'avance | |||||||||||||
| RDC | Activités | 447 | 20 % HT du loyer annuel HT/HC, à la charge du Preneur, payables à la signature du bail | T.V.A. (20%) | ILAT Indice des Loyers des Activités Tertiaires | Mensuel d'avance | ||||||||||||
| RDC | Bureaux | 175 | 20 % HT du loyer annuel HT/HC, à la charge du Preneur, payables à la signature du bail | T.V.A. (20%) | ILAT Indice des Loyers des Activités Tertiaires | Mensuel d'avance | ||||||||||||
| RDC | Locaux sociaux | 65 | 20 % HT du loyer annuel HT/HC, à la charge du Preneur, payables à la signature du bail | T.V.A. (20%) | ILAT Indice des Loyers des Activités Tertiaires | Mensuel d'avance | ||||||||||||
| Total Cellule | Activités | 884 | Immédiate | 106,33 HT/HC/m²/an | 9 660 HT/an | 20 % HT du loyer annuel HT/HC, à la charge du Preneur, payables à la signature du bail | T.V.A. (20%) | commercial 3-6-9 ans | ILAT Indice des Loyers des Activités Tertiaires | Mensuel d'avance | ||||||||
| Total | 884 m² |




























































